Объявление от:
RENTAVIKАренда офиса, Москва, м. Сокольники
В АРЕНДУ
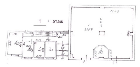
- Сдаваемая площадь: 422 м2
- Тип объекта: Офис
- Смотреть объект на карте
- Обновлено: 13.11.2013
- ID: 16462
-
Описание:
Лот 16328 Офис. 5 мин. пешком от м. Сокольники. Сдается двух-уровневое офисное помещение с отдельным входом в 5 м.п. от м. Сокольники. Современный качественный ремонт класса А+. Кабинетная планировка, высота потолков 3,05 м. Дорогостоящий ремонт, ВИП-кабинет руководителя. Охрана по периметру здания, охранно-пожарная сигнализация внутри офиса, система видеонаблюдения. Количество этажей: 6, здание: жилое. Планировка: кабинетная. Отделка: с отделкой за выездом арендаторов. Вентиляция: приточно-вытяжная. Кондиционирование: сплит-системы. Безопасность: видеонаблюдение, круглосуточный доступ. Парковка: подземная, наземная, стихийная. Лифты: нет. Провайдеры: МГТС. Инфраструктура: кафе, ресторан, банк. Вакантные площади: Этаж 1,2 - 422,6 м2. 219 м2 - гараж. Арендная ставка: 800000 руб/мес, эксплуатация: 65-120000 руб/мес, в зависимости от сезона по факту. Предоставляется 8-10 м/м бесплатно. Интернет и телефония оплачиваются отдельно. Освобождается с 19 0ктября. Обеспечительный депозит: 2 месяца аренды. Долгосрочный договор аренды (от 3 лет).
-
Особенности:
- — жилое здание
- — вход в здание свободный
- — этаж 1, всего этажей 6
-
Расположение:
Адрес:
Москва, Маленковская улица, 14к1
Метро рядом:
Сокольники
-












